Why this matters: A landlord, tenant, leasing agent or property manager uses a Commercial Lease Agreement of the gross variety for projects with a single tenant or multiple tenants when the landlord retains the obligations to manage and pay for most or all property operating expenses such as property taxes, insurance and maintenance during the tenancy.
Commercial lease agreements
A lease agreement is a contract entered into by a landlord and tenant. Its provisions set out the tenant and landlord responsibilities, namely, the payment of rent obligations, ownership expenses and maintenance of the real estate.
The lease agreement also acts as a grant, conveying a possessory interest in real estate, called a leasehold estate, or simply referred to as a lease. [Calif. Civil Code §761(3)]
The landlord, on entering into a lease agreement and delivering possession of the leased property to the tenant, conveys to the tenant the exclusive right to occupy a parcel of real estate, or space within a parcel, for a fixed period of time, called the term.
The tenant’s right to occupy the real estate during the term of the lease is conditional. To retain possession, the tenant must perform obligations called for in two categories of provisions in the lease agreement:
- one is the payment of rent and any property operating expenses agreed to by the tenant; and
- the other is any maintenance of the property agreed to by the tenant.
During the term of the lease, the landlord as the fee owner holds a reversionary interest in the leased parcel or space. On termination of the lease term, the right of possession to the real estate reverts to the landlord.
Related article:
Form-of-the-Week: Commercial Lease Agreement — Form 552 series
The lease agreement forms
An agreement, such as a lease, conveying possession to real estate for a tenancy exceeding one year needs written evidence of the tenancy signed by the landlord before it’s enforceable by the tenant — a statute of frauds requirement. [CC §1624(a)(3)]
Provisions in a lease agreement are separated into three categories of landlord and tenant activities:
- conveyance of the leasehold interest;
- money obligations of the tenant for payment of rent and property operating expenses; and
- responsibility of the tenant and the landlord for care and maintenance of the property. [See RPI Form 552]
Commercial lease agreements exist in many variations. The landlord and tenant choose one based on:
- whether the property is for single or multi-tenant use;
- the type of tenancy; and
- who is responsible for maintenance.
Realty Publications, Inc. (RPI) publishes and maintains gross and net lease agreements tailored to common variations in commercial rental and lease agreements, including:
- Single Tenant Gross Lease [See RPI Form 552];
- Multi-Tenant Gross Lease [See RPI Form 552-1];
- Single Tenant Net Lease [See RPI Form 552-2];
- Multi-Tenant Net Lease [See RPI Form 552-3];
- Percentage Lease [See RPI Form 552-4]; and
- Month-to-Month Tenancy. [See RPI Form 552-5]
A landlord and tenant may further customize and modify their lease agreements with different addenda, such as:
- Maintenance Modification Addendum [See RPI Form 552-6];
- Alienation Addendum [See RPI Form 552-7]; and
- Subordination Addendum. [See RPI Form 552-8]
To be enforceable, a lease agreement:
- identifies the location of the leased premises with reasonable certainty;
- sets forth the term of the tenancy conveyed; and
- states the rental amount and other sums due, and the time, place and manner of payment. [Levin Saroff (1921) 54 CA 285]
Related video:
Difference between gross and net leases
A gross lease calls for the landlord to pay property operating expenses such as property taxes, insurance and maintenance costs.
A net lease calls for the tenant to pay these property operating expenses.
Under a gross lease, a tenant’s rental payment is a fixed, predictable amount. With a net lease, the tenant has less predictability in the costs of the occupancy. Property taxes change based on a reassessment triggered by the landlord, insurance premium adjustments due to location and maintenance costs, all of which are unpredictable.
Both types of lease agreements may be modified by an addendum to alter the extent of the landlord or tenant obligations for these property operating expenses. Common area maintenance (CAM) provisions shift landlord operating costs to the tenant when the lease agreement notes the operating cost the tenant is responsible for. [See RPI Form 552-6]
The primary difference between the two types of lease agreements is a property management issue. Gross leases benefit tenants by fixing the amount of their occupancy obligations without concern for the owner’s management of property operating costs. In contrast, net leases favor landlords by shifting management and payment of the property operating costs to the tenant.
Related article:
Form-of-the-Week: Commercial Lease Agreements — Net variety — Forms 552-2 and 552-3
The contents of a lease agreement
A properly structured commercial lease agreement form has five sections, each fulfilling a separate purpose:
- identification of the participants and the premises, conveyance of the leasehold and the term of the tenancy;
- rent provisions setting the amount of rent and identifying other amounts the tenant owes the landlord, and conditions for payment of the amounts;
- use-maintenance provisions which allocate between the landlord and the tenant the responsibilities for care and maintenance of the leased property;
- miscellaneous provisions for conditions controlling the transaction; and
- the signature of the participants.
Related article:
Analyzing the single-tenant gross commercial lease agreement
A leasing agent, tenant or landlord uses the Commercial Lease Agreement — Gross — Single Tenant published by RPI when the entire space in a commercial property is leased by one tenant for a fixed term. The agreement grants the tenancy and sets the terms for rent, imposes payment of utilities and janitorial expenses on the tenant with the landlord responsible for maintenance and carrying costs of the property. [See RPI Form 552]
The Commercial Lease Agreement — Gross — Single Tenant contains:
- Facts: The landlord’s and tenant’s names, a description of the leased premises, the security deposit and first month’s rent amount and a checklist of addenda. [See RPI Form 552 §1]
- Term of lease: The commencement and expiration date of the lease term, and conditions of the occupancy conveyed. [See RPI Form 552 §2]
- Possession: The date possession is delivered to the tenant and conditions related to possession. [See RPI Form 552 §3]
- Rent: The schedule for payment of rent, the date rent begins to accrue, and the amount of rent as either a fixed rent amount, a graduated rent amount or a Consumer Price Index (CPI) adjusted amount, and how rent is paid, who it is paid to, the recipient’s address, the tenant’s credit card and bank account info, and when rent is delinquent and the late fee chargeable. [See RPI Form 552 §4]
- Operating expenses: Utility, service charges and property taxes the tenant and landlord are separately responsible for, and energy consumption reports. [See RPI Form 552 §5]
- Repair and maintenance: The condition of the premises on transfer of possession, the fixtures the tenant maintains and the structure and common area components the landlord maintains. [See RPI Form 552 §6]
- Use of the premises: The tenant’s intended use of the premises, uses not allowed by the tenant on the premises, and whether an inspection by a Certified Access Specialist (CASp) has occurred. [See RPI Form 552 §7]
- Appurtenances: The tenant’s right to ingress and egress and use of the entire property. [See RPI Form 552 §8]
- Assignment, subletting and encumbrance: Whether and on what conditions the tenant may assign the lease or sublet any part of the premises, or further encumber the leasehold. [See RPI Form 552 §9]
- Signs and advertising: Tenant signage needs landlord consent. [See RPI Form 552 §10]
- Tenant improvements/alterations: Landlord authorization required for tenant improvements. [See RPI Form 552 §11]
- Right to enter: Landlord access on 24 hours’ notice. [See RPI Form 552 §12]
- Liability insurance: Tenant to obtain commercial general liability and plate glass insurance coverage, and waiver of subrogation rights. [See RPI Form 552 §13]
- Fire insurance: Tenant to obtain fire insurance policy for tenant’s personal property and tenant improvements. [See RPI Form 552 §14]
- Hold harmless: Tenant holds landlord harmless for claims due to the tenant, employees or patrons. [See RPI Form 552 §15]
- Destruction: On total or partial destruction of the premises, tenant to repair when caused by the tenant or covered by the tenant’s insurance, and landlord to repair when not covered by the tenant’s insurance and covered by the landlord’s insurance, and no termination of lease agreement on destruction with exceptions. [See RPI Form 552 §16]
- Subordination: Tenant to subordinate their leasehold estate to new financing with specified parameters not likely to jeopardize tenant’s leasehold. [See RPI Form 552 §17]
- Tenant estoppel certificates: Tenant to execute a Tenant Estoppel Certificate verifying the terms of the lease agreement. [See RPI Form 552 §18]
- Eminent domain: On condemnation for public use, the tenant’s recovery is limited to payment by the condemning agency for other than the leasehold interest. [See RPI Form 552 §19]
- Waiver: A waiver of a breach does not constitute a waiver of another breach, and landlord’s acceptance of rent does not waive landlord’s right to enforce a breach. [See RPI Form 552 §20]
- Default remedies: On a tenant breach, landlord may collect future rent after a forfeiture of possession. [See RPI Form 552 §21]
- Tenant broker fees: The landlord to pay tenant broker fees per an addendum. [See RPI Form 552-9; See RPI Form 552 §22]
- Miscellaneous: Attached addenda; tenant’s receipt of the Agency Law Disclosure; the lease agreement is the entire agreement binding on successors; enforced by California law; an attorney fees provision; whether performance of the lease agreement is secured by a trust deed or assured by a Guarantee Agreement; and whether the property is located in a special flood hazard area or an area of potential flooding. [See RPI Form 552 §23]
- Blank: A blank space for writing additional provisions. [See RPI Form 552 §24]
- Signatures: The landlord, landlord’s broker, tenant and tenant’s broker sign and date the agreement.
Related article:
Analyzing the multi-tenant gross commercial lease agreement
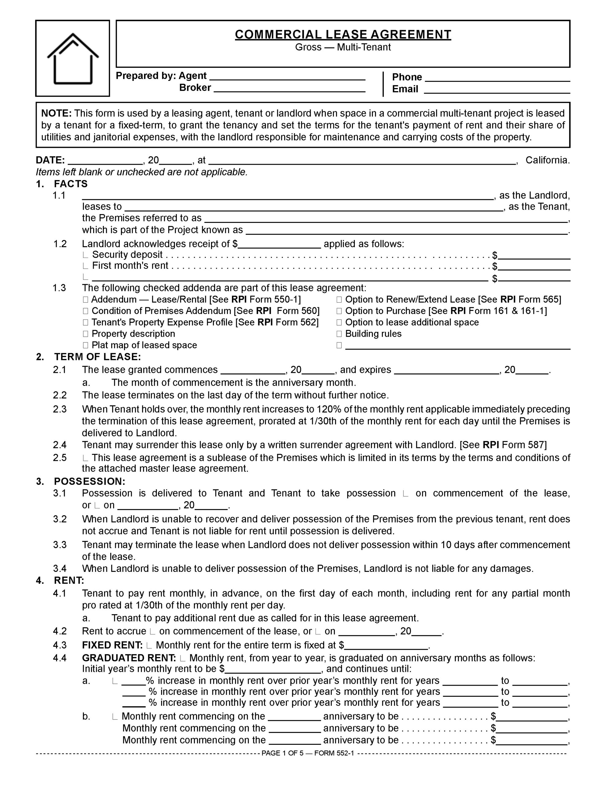
A leasing agent, tenant or landlord uses the Commercial Lease Agreement — Gross — Multi-Tenant when space in a commercial multi-tenant project is leased by a tenant for a fixed-term. The agreement grants the tenancy and sets the terms for the tenant’s payment of rent and their share of utilities and janitorial expenses, with the landlord responsible for maintenance and carrying costs of the property. [See RPI Form 552-1]
The Commercial Lease Agreement — Gross — Multi-Tenant contains:
- Facts: The landlord’s and tenant’s names, a description of the leased premises, the security deposit and first month’s rent amount and a checklist of addenda. [See RPI Form 552-1 §1]
- Terms of lease: The commencement and expiration date of the lease term, and conditions of the occupancy conveyed. [See RPI Form 552-1 §2]
- Possession: The date possession is delivered to the tenant and conditions related to possession. [See RPI Form 552-1 §3]
- Rent: The schedule for payment of rent, the date rent begins to accrue, and the amount of rent as either a fixed amount, a graduated rent amount or a Consumer Price Index (CPI) adjusted amount, and how rent is paid, who it is paid to, the recipient’s address, the tenant’s credit card and bank account info, and when rent is delinquent and the late fee chargeable. [See RPI Form 552-1 §4]
- Operating expenses: Utility, service charges and property taxes the tenant and landlord are separately responsible for, energy consumption reports and CAM charges as a percentage the tenant pays in addition to monthly base rent. [See RPI Form 552-1 §5]
- Repair and maintenance: The condition of the premises on transfer of possession, the fixtures the tenant maintains and the structure and common area components the landlord maintains. [See RPI Form 552-1 §6]
- Use of the premises: The tenant’s intended use of the premises, uses not allowed by the tenant on the premises, and whether an inspection by a Certified Access Specialist (CASp) has occurred. [See RPI Form 552-1 §7]
- Appurtenances: The tenant’s right to ingress and egress and the number of parking spaces the tenant has available. [See RPI Form 552-1 §8]
- Assignment, subletting and encumbrance: Whether and on what conditions the tenant may assign the lease or sublet any part of the premises, or further encumber the leasehold. [See RPI Form 552-1 §9]
- Signs and advertising: Tenant signage needs landlord consent, and whether the landlord provides a directory and sign on tenant’s suite paid by the tenant. [See RPI Form 552-1 §10]
- Tenant improvements/alterations: Landlord authorization required for tenant improvements. [See RPI Form 552-1 §11]
- Right to enter: Landlord access on 24 hours’ notice. [See RPI Form 552-1 §12]
- Liability insurance: Tenant to obtain commercial general liability and plate glass insurance coverage, and waiver of subrogation rights. [See RPI Form 552-1 §13]
- Fire insurance: Tenant to obtain fire insurance policy for tenant’s personal property and tenant improvements. [See RPI Form 552-1 §14]
- Hold harmless: Tenant holds landlord harmless for claims due to the tenant, employees or patrons. [See RPI Form 552-1 §15]
- Destruction: On total or partial destruction of the premises, tenant to repair when caused by the tenant or covered by the tenant’s insurance, and landlord to repair when not covered by the tenant’s insurance and covered by the landlord’s insurance, and no termination of lease agreement on destruction with exceptions. [See RPI Form 552-1 §16]
- Subordination: Tenant to subordinate their leasehold estate to new financing with specified parameters not likely to jeopardize tenant’s leasehold. [See RPI Form 552-1 §17]
- Tenant estoppel certificates: Tenant to execute a Tenant Estoppel Certificate verifying the terms of the lease agreement. [See RPI Form 552-1 §18]
- Eminent domain: On condemnation for public use, the tenant’s recovery is limited to payment by the condemning agency for other than a leasehold interest. [See RPI Form 552-1 §19]
- Waiver: A waiver of a breach does not constitute a waiver of another breach, and landlord’s acceptance of rent does not waive landlord’s right to enforce a breach. [See RPI Form 552-1 §20]
- Default remedies: On a tenant breach, landlord may collect future rent after a forfeiture of possession. [See RPI Form 552-1 §21]
- Tenant broker fees: The landlord to pay tenant broker fees per an addendum. [See RPI Form 552-9; See RPI Form 552-1 §22]
- Miscellaneous: Attached addenda; tenant’s receipt of the Agency Law Disclosure; the lease agreement is the entire agreement binding on successors; enforced by California law; an attorney fees provision; whether performance of the lease agreement is secured by a trust deed or assured by a Guarantee Agreement; and whether the property is located in a special flood hazard area or an area of potential flooding. [See RPI Form 552-1 §23]
- Blank: A blank space for writing additional provisions. [See RPI Form 552-1 §24]
- Signatures: The landlord, landlord’s broker, tenant and tenant’s broker sign and date the agreement.
Related article:
Form-of-the-Week: Buyer and Tenant Representation Agreements — Forms 103.1, 103.2, 105.1 and 105.2












This is an excellent summary of commercial lease agreements and why gross leases matter. Understanding the division of responsibilities—like who covers property taxes, insurance, and maintenance—helps both landlords and tenants avoid costly disputes. Whether managing a single-tenant property or a multi-tenant project, having a clear lease protects everyone involved. For those seeking guidance on insurance or liability coverage related to commercial leases,