Why this matters: To represent a commercial tenant, a broker enters into a tenant representation agreement with the tenant to locate space available for rent using RPI Forms 105.1 or 105.2. To renew or modify the retainer period to continue representing the tenant, the broker uses RPI Forms 105.1A or 105.2A. Critically, these employment negotiations avoid the antitrust price-fixing fee arrangements prevalent among commercial brokers prior to 2025.
Broker representation forms for prospective commercial tenants
As of January 2025, a buyer broker is required to enter into a written employment agreement with their buyer-client when, in expectation of earning a fee, they assist the buyer to locate property available for sale. [Calif. Civil Code §1670.50]
These agreements are commonly referred to as a buyer representation agreement, or BRA for short. [See RPI Form 103.1 and 103.2]
Representation agreements are not solely for buyer brokers who expect a fee when they locate property for a buyer. Seller brokers must continue to enter into seller representation agreements with their seller-clients. Without documentation of the representation, the seller broker cannot enforce collection of a fee earned for marketing the seller’s property for sale. [See RPI Form 102]
Likewise, a broker may assist tenants in expectation of earning a fee, particularly commercial tenants, to locate space for occupancy periods greater than one year and negotiate terms, conditions and pricing suitable to their tenant.
Here, the tenant broker uses a tenant representation agreement to document the period of employment and conditions for earning their fee. [See RPI Form 105.1 and 105.2]
Related article:
Individual vs. entity clients
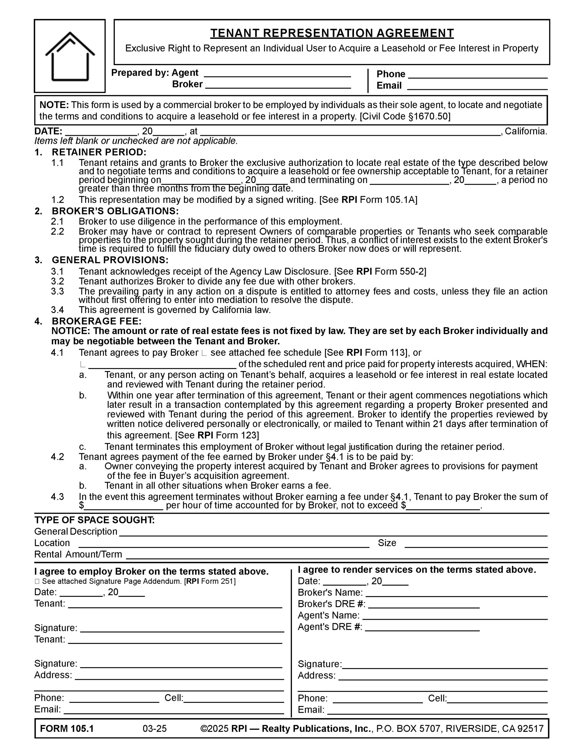
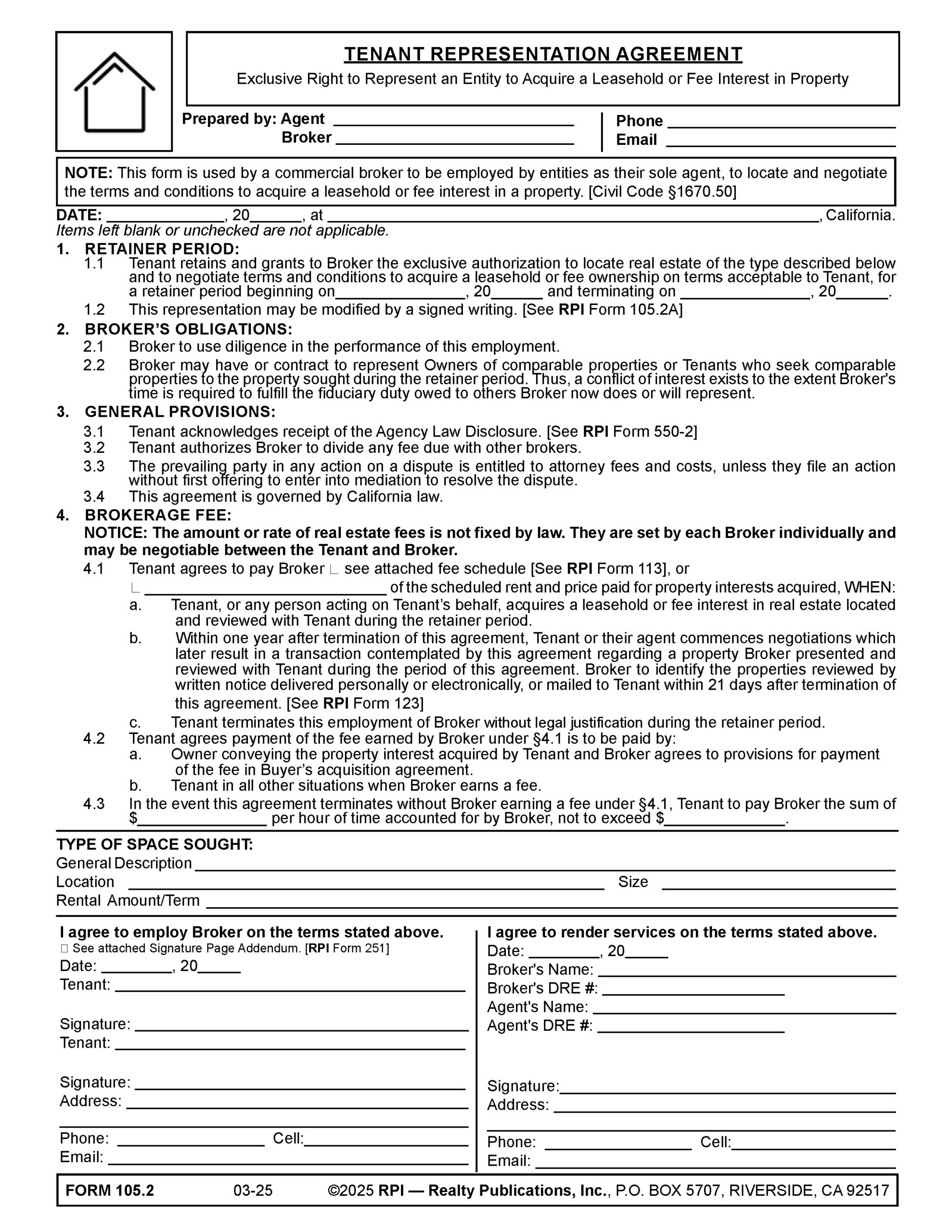
The tenant representation agreement employing a broker to acquire a leasehold interest in a property is the leasing equivalent to the buyer representation agreement to acquire a fee interest.
Like the buyer representation agreement, the tenant representation agreement involves a set of two forms, distinguished by whether the tenant-client is an:
- individual [See RPI Form 105.1]; or
- entity. [See RPI Form 105.2]
An entity client includes:
- corporations;
- real estate investment trusts (REITs);
- limited liability companies (LLCs); and
- partnerships.
The retainer period for tenant representation agreements differs depending upon what kind of tenant-client is involved (individual or entity). Thus, two different forms best distinguish the two rules for retainer periods, for both the initial representation period and the renewal or modification of the representation period.
The retainer period for tenants who are individuals may not run longer than three months from the date the agreement is signed. [CC §1670.50(d)(1)]
However, when the tenant is an entity, the retainer period may be for whatever duration the broker and tenant-client negotiate. [CC §1670.50(d)(1)]
For an individual tenant who agrees to renew the representation, the tenant broker uses a Renewal of Tenant Representation Agreement form. [See RPI Form 105.1A]
For an entity tenant agreeing to modify the expiration of the retainer period, the tenant broker uses a Modification of Tenant Representation Agreement form. [See RPI Form 105.2A]
Related article:
Buyer Representation Agreements: The end of the “gold standard”
Analyzing the tenant representation agreements
A commercial tenant broker uses a Tenant Representation Agreement when employed by individuals or entities as their sole agent. Here, the tenant broker agrees to locate and negotiate the terms and conditions to acquire a leasehold interest in a property, or in the alternative, acquire a fee interest. [See RPI Form 105.1 and 105.2]
Both versions of the Tenant Representation Agreement contain provisions addressing:
- Retainer period: the tenant broker enters the beginning and end dates of the retainer period. For individuals, this period is limited to no greater than three months from the beginning date. This three-month time limit does not exist for entities who are buyer-clients. [See RPI Form 105.1 and 105.2 §1]
- Broker obligations: the tenant broker agrees to use diligence in the employment as well as to disclose conflicts of interest involving their representing other clients with similar needs as the tenant-client. [See RPI Form 105.1 and 105.2 §2]
- General provisions: the Agency Law Disclosure is provided to the tenant as mandated, the tenant authorizes the broker to divide any fee due with other brokers, and a mediation provision and choice-of-law provision are included. [See RPI Form 105.1 and 105.2 §3]
- Brokerage fee: includes a boilerplate notice about real estate fees being negotiable between the tenant and broker and not fixed by law, as well as the amount and payment of brokerage fees, including:
- the tenant broker fee earned is an agreed percentage of the scheduled rent and sales price [See RPI Form 105.1 and 105.2 §4.1];
- the landlord is to pay the fee earned by the tenant broker on conveyance of a leasehold or fee simple to the tenant [See RPI Form 105.1 and 105.2 §4.2(a)];
- in all other instances where the broker earns a fee, the tenant pays [See RPI Form 105.1 and 105.2 §4.2(b)]; and
- an hourly rate as an alternative to percentage fees. [See RPI Form 105.1 and 105.2 §4.3]
- Type of space sought: the broker enters a general description, location, size and rental amount and term of the property the tenant needs for occupancy. [See RPI Form 105.1 and 105.2]
- Signatures: the broker and tenant date and sign the prepared form.
Renewal and modification of tenant representation agreement
A commercial tenant broker presently representing an individual under a tenant representation agreement uses the Renewal of Tenant Representation Agreement form to continue representing the client. It renews the representation agreement, setting the new retainer period as limited from the date of the renewal agreement. [See RPI Form 105.1A]
A commercial tenant broker presently representing an entity under a tenant representation agreement uses the Modification of Tenant Representation Agreement form to continue the representation. It modifies the existing representation agreement by extending its period of representation. [See RPI Form 105.2A]
Both renewal and modification forms contain the following provisions:
- date of renewal or modification;
- the tenant and broker names; and
- the type of property sought. [See RPI Form 105.1A and 105.2A §1]
The renewal for individuals contains:
- a retainer-period termination date, no greater than three months from the date the renewal is entered into; and
- any modifications to the tenant representation agreement. [See RPI Form 105.1A §2]
The modification for entities contains:
- the extended termination date of the tenant representation agreement as negotiated; and
- any modifications to the tenant representation agreement. [See RPI Form 105.2A §2]
Both forms require signatures of the tenant broker and tenant-client to be enforceable.
Related article:
FOTW: Buyer Representation Agreements and Renewals — Forms 103.1, 103.2, 103.1A and 103.2A













