This form is used by a buyer broker when employed by an entity as its sole agent, to render services necessary to acquire an interest in real estate.
The “Buyer Representation Agreement” has long existed as a “Buyer Listing Agreement”
Standard custom for setting fee arrangements, long enforced by the real estate trade union, has been dramatically reversed due to the National Association of Realtors®’ (NAR’s) March 2024 settlement. In response, prior California case law has fast bled into legislation.
As a result, fee arrangements for buyer agents working with individuals or entities seeking to acquire an interest in property are mandated to be in writing to enforce collection of a fee.
Specifically, legislation now requires a buyer agent – not the seller agent unless acting as a dual agent – to enter into a written employment agreement when their buyer client seeks to acquire an interest in any type of real estate. [See RPI Forms 103.1 and 103.2]
The employment agreement provides upfront disclosure of the brokerage fee to be earned by the buyer agent for acquisition services. Further, the writing establishes the buyer will pay the fee, unless pushed to the seller. In either circumstance, the fees are included in the total purchase price the buyer offers to pay to acquire an interest in property.
The written Buyer Representation Agreement is entered into by the buyer agent:
- as soon as practicable (ASAP) after determining they will be representing the prospective buyer client; and
- always before the buyer signs an offer to acquire an interest in the property. [Calif. Civil Code 1670.50(a)]
This buyer-agent conduct with their buyer, in and of itself, is not a new or novel employment arrangement. Rather, this codification is a welcome advancement on a well-worn and storied theme.
For decades prior to the settlement rattling the trade union’s “gold standards,” a buyer listing agreement was used by a buyer to employ a broker and their agents. The agent then locates qualified properties for the buyer to purchase, exchange or option, as authorized under an exclusive right-to-buy listing. [See RPI Form 103-1]
As with an exclusive right-to-sell listing, the exclusive right-to-buy variation contained provisions for a brokerage fee earned and owed as negotiated with the buyer, not the seller or the seller agent. The buyer broker fee is paid to the broker at the close of escrow from funds for payment of the purchase price, when the buyer acquires property described in the buyer listing (representation) agreement.
Editor’s note – RPI (Realty Publications, Inc.) has published an exclusive right-to-buy listing agreement since 1981, induced by the California case decision of People v. NAR. [People v. National Association of Realtors (1981) 120 CA3d 459]
So what has materially changed in the past several decades?
Not much, actually.
The new statutory title is Buyer-Broker Representation Agreement. It is fundamentally a new name for a long established employment contract. The name “representation” was conjured into existence in the wake of the recent NAR antitrust case settlement, codifying some of the new nomenclature to replace the name “Buyer Listing Agreement.”
The operative components of the representation agreement entered into between a buyer and a buyer broker, as negotiated by the broker’s agent, contain the same essential provisions:
- a description of the real estate services to be rendered by the buyer agent;
- the fee to be paid to the broker;
- when the fee is to be paid; and
- the conditions for termination of the employment. [CC 1670.50(b)]
The buyer representation agreement also contains the same boilerplate notice already required in all employment contracts a broker uses to establish their right to a fee, such as any listing agreement:
NOTICE: The amount or rate of real estate fees is not fixed by law. They are set by each Broker individually and may be negotiable between Client and Broker.
Editor’s note – Ironically, this is likely the same verbiage the trade union would have preferred to have been surreptitiously dropped from this new form. [Calif. Business and Professions Code §10147.5(b)]
Written documentation of the client’s obligation to pay a fee — here, being a written fee agreement negotiated and signed by the buyer — has long been legislated and judicially mandated as a requisite to the right to enforce collection of a broker fee on a contemplated purchase transaction entered into by the buyer.
But there is another minor difference apart from the name and mandated use of the employment agreement. The buyer representation agreement retainer period is now limited when the buyer is an individual. This is in contrast to buyers which are entities, such as:
- corporations;
- limited liability companies (LLCs); and
- partnerships.
The broker’s retainer period for services to be rendered to individuals under a representation agreement may initially run no more than three months from the date the agreement is signed and received by the broker. [CC §1670.50(d)(1)]
However, when the buyer-client is an entity, they may agree to a retainer period for whatever duration the broker and buyer negotiate. Further, the expiration of an entity’s retainer period may be extended by modifying the representation agreement. With an entity as the buyer client, the broker is unrestricted by the three-month limitations on the retainer period which exist when representing individuals. [CC §1670.50(d)(1); see RPI Form 103.1A and 103.2A]
Editor’s note – An intervivos trust, also known as a living trust, is not an entity but is an individual. The buyer is the individual who established the intervivos trust and is the initial beneficiary with the right to remove the property from the trust vesting.
The expiration of the retainer period for an employment with an individual buyer may not be extended automatically or otherwise. However, the buyer representation agreement may be reset for a new three-month retainer period by a separate renewal agreement entered into with the buyer. [CC §1670.50(d)(2)]
When the employment objective has not been achieved and the individual buyer intends to continue to work with their agent to locate and acquire a suitable property, the buyer representation agreement may be renewed by using a written renewal agreement form, dated and signed by all participants. [See RPI Form 103.1A]
This is also but a minor variation on an existing theme.
Previously, an exclusive listing needed to contain a specified period of employment set by an expiration date of the employment, say, three or six months, after its commencement. When an expiration date is not included in an exclusive listing, the broker faces suspension or revocation of their license by the Department of Real Estate (DRE). [Bus and PC §10176(f)]
As before, use of an exclusive employment agreement provides greater incentive for brokers and their agents to perform their duty to work diligently and continuously to meet their buyer’s objective.
Analyzing the buyer representation agreement
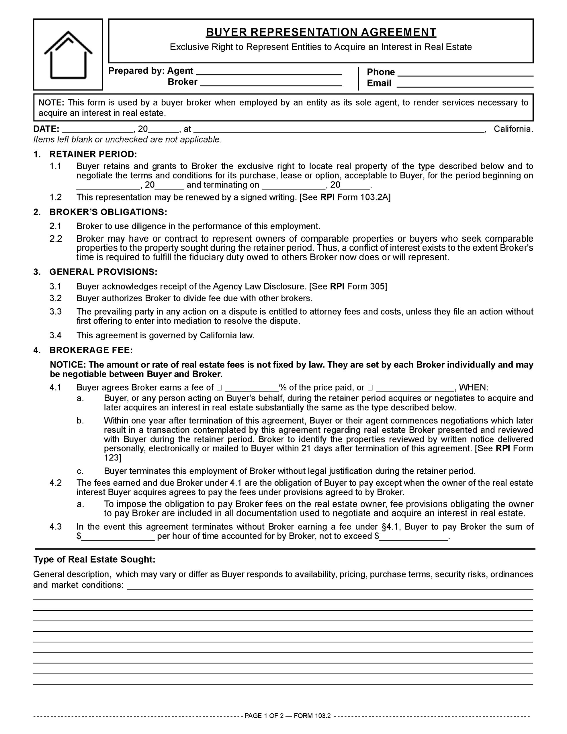
A buyer broker uses the Buyer Representation Agreement published by RPI when agreeing to be employed by individuals or entities as their sole agent to render services necessary to acquire an interest in real estate. [See RPI Form 103.1 and 103.2]
The buyer representation agreement (BRA) includes:
- Retainer period: for individuals, the date the retainer period expires to end the employment may not exceed three months from the date of the agreement. For entities, the retainer period may be for any duration the broker and entity client negotiate as the three-month limitation for individuals does not apply. [See RPI Form 103.1 and 103.2 §1]
- Broker obligations: the broker commits to use diligence in serving the buyer’s needs in exchange for a fee as well as disclose conflicts of interest involving their representing other clients with similar needs as the tenant-client. [See RPI Form 103.1 and 103.2 §2]
- General provisions, such as:
- the buyer’s acknowledgement they have received the Agency Law Disclosure [See RPI Form 305];
- the buyer’s authorization that the broker may divide fees earned with other brokers, such as the seller broker;
- a mediation and attorney fees provision; and
- the agreement is governed by California law. [See RPI Form 103.1 and 103.2 §3]
- Brokerage fee: the buyer agrees the broker earns a fee, either a percentage of the purchase price, or a fixed fee, when:
- the buyer’s objective is achieved during the retainer period;
- the buyer acquires a property within one year after the representation expires and when the broker introduced the buyer to the property during the representation period; or
- the buyer terminates the broker’s employment without justification during the retainer period. [See RPI Form 103.1 and 103.2 §4.1]
- The broker fees are the obligation of the buyer to pay except when the seller agrees to pay the fee. [See RPI Form 103.1 and 103.2 §4.2]
- The broker and buyer may agree to an hourly rate earned by the broker and paid by the buyer when the representation terminates without the broker otherwise earning a fee. [See RPI Form 103.1 and 103.2 §4.3]
- Type of real estate sought: the broker enters a general description, location and size for the property sought. When the client will consider leasing, the agent enters the location, rental amount and term sought. [See RPI Form 103.1 and 103.2]
- Signatures: the broker, agent and buyer date and sign the prepared form.
Form navigation page published 09-2024. Updated 06-2025.
Form last revised 2025.
Form-of-the-Week: Buyer Representation Agreements and Renewals — Forms 103.1, 103.2, 103.1A and 103.2A
Form-of-the-Week: Buyer and Tenant Representation Agreements — Forms 103.1, 103.2, 105.1 and 105.2
Article: Buyer Representation Agreements: The end of the “gold standard”
Article: Preempt your buyer-client’s questions about representation using Client Q&A Flyers
Article: Buyer representation, dual agency and double ending
Article: Confronting the illegal practice of price-fixing fees in 2025 — California style
Letter to the Editor: What happens to buyer representation agreements and fees when an agent changes brokers?
Client Q&A: What is a buyer representation agreement?
Video: Introducing the Buyer Representation Agreement
Video: Buyer Representation Agreement Retainer Periods
Video: Putting the Representation Forms into Practice










I’ve used this form before when representing a small business client, and it really helps make the relationship clear.
Thank you for sharing.
Neurodiversity strengthens professional relationships by valuing clear communication, structured expectations, and diverse approaches to collaboration and problem-solving.
I’ve used this form before when representing a small business client, and it really helps make the relationship clear. It sets strong expectations and keeps everything transparent during the purchase.