This form is used by a property manager or landlord when a tenant defaults on amounts due under a rental or lease agreement, to notify the tenant of the amount of the delinquent rents and related fees payable within three days, excluding weekends and judicial holidays, or vacate and deliver possession.
To serve a three-day notice to pay rent or quit without rent-related fees, see RPI Form 575-1.
The Three-Day Notice to Pay Rent or Quit: a landlord’s remedy for a material breach
Default, notice, then cure or vacate
Consider a tenant who defaults on their rental or lease agreement by failing to:
- pay rent and any other amounts due and called for in the rental or lease agreement; or
- perform nonmonetary obligations called for in the rental or lease agreement. [See RPI Form 550 and 551]
On the tenant’s default, the landlord may make a demand on the tenant to cure the default or forfeit their right to possession and vacate the premises. To properly make the demand, the landlord uses one of multiple types of three-day notices to quit. However, only a material breach allows the landlord to forfeit the tenant’s right of possession on expiration of the three-day notice period without payment. [See RPI Form 575 and 575-1]
Failure to perform significant obligations called for in the rental or lease agreement is a material breach. Examples of a material breach include the failure to:
- pay rent;
- maintain the property as agreed;
- pay common area maintenance (CAM) charges; and
- pay utilities.
Conversely, minor breaches, which alone do not justify a three-day notice to cure or quit, include the tenant’s failure to pay:
- late charges;
- interest penalties;
- bad check charges; or
- security deposits. [KeatingPreston (1940) 42 CA2d 110]
Some nonmonetary defaults by a tenant cannot be cured. These are known as incurable breaches. Incurable breaches include:
- waste to the premises;
- alienation of the leasehold;
- nuisance; or
- significant criminal activity which has occurred on the leased property.
The landlord’s remedy for an incurable breach is to serve the tenant a notice to quit the premises within three days after service. In this situation, the tenant has no alternative but to vacate. Thus, a landlord’s declaration of forfeiture — the ultimatum to cure the breech — accompanying the three-day notice is unnecessary. The failure cannot be cured and the tenancy cannot be reinstated. [Calif. Code of Civil Procedure §1161(4); see RPI Form 577]
Three days between notice and unlawful detainer
When a landlord serves a tenant with a three-day notice to pay rent or quit containing a declaration of forfeiture provision, the tenant needs to cure the breach within the next three calendar days to avoid forfeiture and eventual eviction. [See RPI Form 575 and 575-1]
Editor’s note — Day one of the three-day period is the day after service of the notice. [Calif. Civil Code §10]
The tenant may cure the default, therefore retaining the right of possession, by paying the amount stated before the three-day notice expires. [CCP §1161.5]
The tenant may deliver payment of the delinquent rent in the same manner the tenant made past rental payments — by personal or business check, money order, cashier’s check, credit card, cash or electronic transfer. [Strom v. Union Oil Co. (1948) 88 CA2d 78]
Editor’s note — Under a month-to-month rental agreement, the landlord may modify the tenant’s method of payment by first serving the tenant with a written 30-day notice of a change in the rental terms. [CC §827; see RPI Form 570]
To cure a delinquency, the tenant’s delinquent rent payment needs to actually be paid to the landlord within the three-day period after service of the notice to pay or quit. For instance, when a check for delinquent rent tendered to cure the delinquency is returned unpaid due to insufficient funds in the tenant’s account, the delinquent rent demanded in a three-day notice has not been paid. At that point, the landlord may file an unlawful detainer (UD) action if the tenant remains in possession.
Unless the tenant actually pays the delinquent rent prior to expiration of the notice, the tenant’s right of possession is terminated by the declaration of forfeiture provision in the three-day notice.
Similarly, rent paid by check and timely received by the landlord becomes delinquent when the check is returned due to insufficient funds and funds are not otherwise received within a mutually agreed to grace period. When the rent is delinquent, the landlord may serve the tenant a three-day notice to pay or quit.
Editor’s note — A landlord can require payment of rent in cash when a tenant’s check is returned for insufficient funds. However, this cash-only requirement may not extend longer than three months. After that period, the landlord is required to again accept alternate forms of payment. [CC §1947.3; see RPI Form 552 §3.10]
One-year delinquent rent recovery limitation for unlawful detainer
A three-day notice may only demand rents which became due during the one year prior to the date of service. When a three-day notice demands delinquent rents which have been due for more than one year, the notice is defective and will not terminate the right of possession. Here, more rent has been demanded than will be awarded by a court in a UD action. Thus, any UD action based on a notice demanding rent for delinquencies more than a year old will fail. [Bevill v. Zoura (1994) 27 CA4th 694]
The landlord may recover rents and other amounts more than one year delinquent by pursuing collection in a money action separate from the UD action. A landlord has a four-year period to bring an action to recover due and unpaid amounts. [CCP §337]
Before serving a three-day notice
Before a landlord or property manager serves a tenant with a three-day notice to pay rent or quit, they need to consider the following questions:
- Is the rent delinquent or is the tenant within a stated grace period?
- What amounts are due and for what reason are they unpaid?
- When can delinquent rent be estimated in the three-day notice?
- What is a reasonable estimate of unknown but delinquent rent?
- When does the three-day notice expire allowing a UD action to be filed?
- When does the tenant’s right of possession actually terminate?
- Is the rental or lease agreement cancelled? and
- How are occupants not named in the rental or lease agreement evicted?
Accurate residential rent demands
For a UD action to be valid, the three-day notice to pay rent or quit served on a residential tenant states the exact amount of money due and unpaid. Conversely, a nonresidential landlord may estimate the amount of money due and unpaid when the exact amount cannot be accurately ascertained, as may occur in percentage rent formulas.
A residential tenant is not required to pay more than the amount due and unpaid to retain possessory rights under a rental or lease agreement. [See RPI Form 550 and 551]
However, when the amount stated in a three-day notice served on a residential tenant exceeds the amounts actually due and unpaid at the time of the UD trial, the notice is invalid and the UD action fails. [Jayasinghe v. Lee (1993) 13 CA4th Supp. 33]
For both residential and nonresidential tenants, when the amount stated in the three-day notice is less than the actual amount due and unpaid, the tenant may pay the amount stated and avoid eviction. To collect any amounts omitted in a three-day notice, the landlord serves another three-day notice to pay the balance or quit.
Types of three-day notices for various breaches
The three-day notice served on a tenant needs to be the correct type before the tenant’s unlawful detainer of a premises can be established and the tenant evicted.
Depending on the nature and extent of the tenant’s breach, one of the following types of three-day notices is served:
- a three-daynotice to pay rent or quit [See RPI Form 575 and 575-1];
- a three-daynotice to perform or quit [See RPI Form 576]; or
- a three-daynotice to quit. [See RPI Form 577]
When a tenant’s breach is the failure to pay rent or other money obligation which is due, the tenant is served with a three-day notice to pay rent or quit. This type of breach is called a monetary breach. Thus, it is curable by paying money.
A three-day notice to pay or quit is not limited to the scheduled amount of periodic rent which is delinquent. While the notice to pay may not be served until rent is delinquent, the notice may include all sums of money which are properly due and unpaid under the rental or lease agreement at the time the notice is served, including the delinquent rent. [Canal-Randolph Anaheim, Inc.v. Wilkoski (1978) 78 CA3d 477]
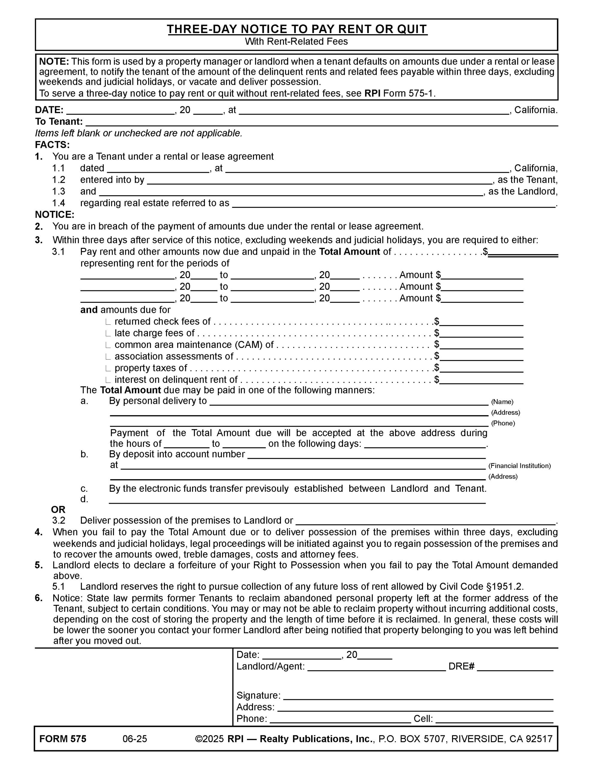
The Three-Day Notice to Pay Rent or Quit – With Rent-Related Fees published by RPI (Realty Publications, Inc.) is used by a landlord or property manager to serve a tenant who fails to pay the amounts due under a rental or lease agreement. The tenant, within three (3) days after service of written notice of the breach, needs to either pay the amount due or vacate and deliver possession of the premises to the landlord. [CCP §1161(2); see RPI Form 575]
Examples of amounts of money due periodically under a rental or lease agreement, in addition to scheduled rent, include:
- common area maintenance charges (CAMs);
- homeowners’ association (HOA) charges;
- pro rata insurance premiums, property taxes and assessments;
- late payment and bad check charges;
- expenses incurred by the landlord to cure waste or failure to maintain the property; and
- other amounts of money properly due as compensation or reimbursement of expenses arising out of the occupancy.
A Three-Day Notice to Pay Rent or Quit – With Rent-Related Fees form provides for the itemization of rent and other amounts due which are unpaid and delinquent. [See RPI Form 575]
Alternatively, a residential landlord may choose, due to the discretion of local UD judges, to use a three-day notice to pay or quit form which does not include rent-related fees. [See RPI Form 575-1]
The Three-Day Notice to Pay Rent or Quit – Without Rent-Related Fees published by RPI (Realty Publications, Inc.) is also used by a landlord or property manager to serve a tenant who fails to pay the amounts due under a rental or lease agreement. However, the demand for payment is limited to actual delinquent rent only, which includes:
- rent and other amounts due and unpaid;
- CAM charges;
- HOA assessments; and
- property taxes. [See RPI Form 575-1]
Form updated 07-2025
Form navigation page published 02-2016.








