This form is used by a leasing agent, property manager or landlord when leasing a residential property on a fixed rental-rate basis for a specific period of time to grant the tenancy and set the amount of rents to be paid, identify who will provide and pay for utilities, and the allocation of maintenance responsibilities and their costs between the landlord and tenant.
Periodic and fixed-term tenancies distinguished
Residential landlords and tenants either enter into a:
- periodic rental agreement; or
- fixed-term lease agreement.
Residential periodic tenancies take the form of month-to-month rental agreements. [See RPI Form 551]
When leasing a residential property on a fixed rental-rate basis for a specific period of time, a lease agreement is used. [See RPI Form 550]
Both residential rental and lease agreements grant and impose on the landlords and tenants the same basic rights and obligations. Their differences lie in the expectation of continued occupancy and the obligation to pay future rent.
A month-to-month rental agreement runs for an indefinite period of time. The tenant’s right to occupy the property on the same terms automatically renews monthly, until modified by the landlord or terminated by either the tenant or the landlord. [See RPI Form 551 §3]
Periodic tenancies may be terminated by either the landlord or tenant on 30 days’ written notice. As an exception, when a residential tenant’s occupancy of a unit exceeds one year, the landlord needs to serve the tenant with at least 60 days’ written notice. [Calif. Civil Code §1946; see RPI Form 569 and 569-1]
On the other hand, a lease agreement creates a tenancy that continues for a fixed period of time. At the end of a fixed-period tenancy, the tenant’s right of possession expires as agreed. The termination of the tenancy is set by the expiration date in the lease agreement. No further notice is required by either the landlord or tenant to terminate the tenancy. [See RPI Form 550 §3]
Unlike a periodic tenancy, the lease agreement does not automatically renew, unless:
- the landlord accepts rent for the tenant’s continued occupancy after expiration of the lease term, which creates a month-to-month tenancy [See RPI Form 550 §3.3]; or
- an option to renew or extend the lease has been provided in the lease agreement and exercised. [See RPI Form 550 §1.3]
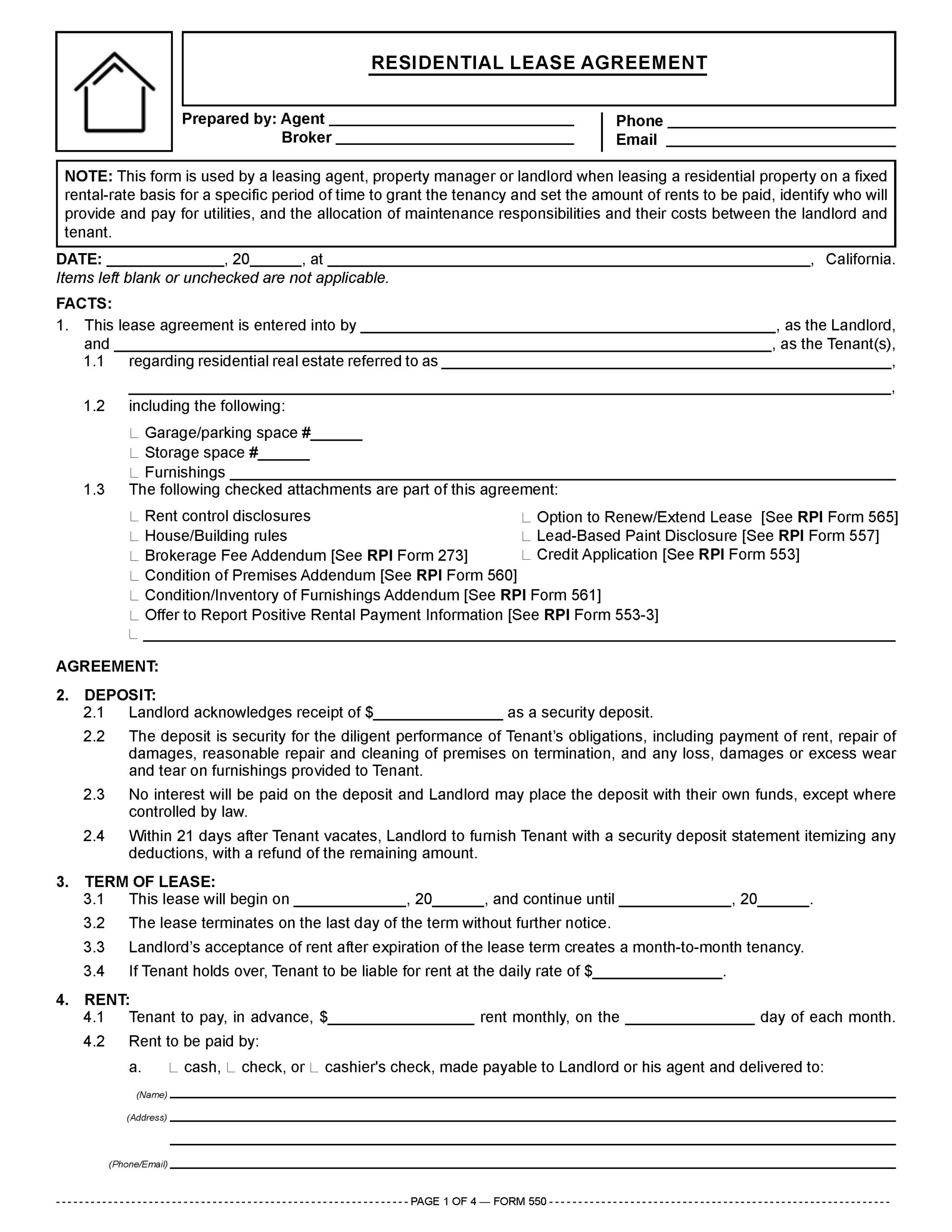
RPI’s Residential Lease Agreement is a fixed-term lease agreement used by a leasing agent, property manager or landlord when leasing a residential property on a fixed rental-rate basis for a specific period of time, to grant the tenancy and set the terms for rent and conditions for maintenance.
The Residential Lease Agreement:
- sets the amount of rents to be paid;
- identifies who will provide and pay for utilities; and
- allocates the maintenance responsibilities and their costs between the landlord and tenant. [See RPI Form 550]
Conditions imposed on a residential occupancy
Residential tenants typically provide a security deposit to the landlord to cover any cost to clean the unit or remedy any damage caused to the unit beyond reasonable wear and tear. [See RPI Form 550 §2]
In return for the use and possession of the premises, the tenant pays the landlord rent until expiration of the lease. The tenant agrees to pay a late charge if rent is not paid on the due date, or within the established grace period. [See RPI Form 550 §4]
Also, a list of occupants who will reside in the property in addition to the named tenants is provided in the lease. Occupants are treated differently than guests. The number of guests the tenant may have in their unit, and the period of time over which their guests may visit, is limited. [See RPI Form 550 §§5.4 and 5.6]
The tenant agrees to comply with all building or project rules and regulations established by any existing covenants, conditions and restrictions (CC&Rs) or the landlord. [See RPI Form 550 §6.1]
The landlord and tenant agree who will pay or how they will share the financial responsibility for the unit’s utilities. Landlords of apartment buildings or complexes often retain the responsibility of providing water to the units. [See RPI Form 550 §6.2]
The tenant also agrees to hold the landlord harmless from all liability for damages caused by the tenant or their guests. For this purpose, the tenant is often required to provide insurance coverage. [See RPI Form 550 §7.1]
Existing statutory rights and duties restated
Residential rental and lease agreements often contain provisions that restate the landlord’s and tenant’s statutory rights and duties which are not well understood. RPI’s Residential Lease Agreement reiterates the landlord’s statutory obligation to furnish a tenant with:
- a security deposit refund;
- a notice of the tenant’s right to a joint pre-expiration inspection of the unit and delivery of an itemized statement of repairs and needed cleaning [CC §1950.5(f)]; and
- a statement of security deposit accounting and an itemization of any deductions. [CC §1950.5(g)(1); see RPI Form 550 §2.4]
Further, the lease agreement advises tenants of their limited statutory right to make necessary repairs to the premises and deduct the cost from the rent when the landlord fails to make the repairs the tenant has brought to the landlord’s attention. [CC §1942; see RPI Form 550 §5.8]
The lease agreement prohibits a tenant from:
- using the premises for an unlawful purpose;
- creating a nuisance; and
- committing waste to the property. [See RPI Form 550 §§6.8 and 6.9]
Even if a lease agreement does not restate these statutory prohibitions, a tenant who conducts any of these prohibited activities may be evicted by the landlord with the service of a three-day written notice to quit. Here, no alternative performance is available to the tenant. [Calif. Code of Civil Procedures §1161(4); see RPI Form 575 and 575-1]
In the event the premises is totally or partially destroyed and becomes uninhabitable, either the landlord or tenant may terminate the lease by giving written notice. When the lease is not terminated, the landlord needs to repair the premises and prorate the rent for the period of time the premises is uninhabitable by the tenant. [See RPI Form 550 §8]
Lease negotiations on expiration
A landlord may not alter the terms of a lease agreement during the life of the lease without consideration and the tenant’s consent.
To extend a soon-to-expire lease agreement, the landlord may contact the tenant and offer to enter into:
- another lease agreement; or
- a month-to-month rental agreement.
Often, a residential tenant wants to remain in possession on expiration of their lease. The amount of rent a landlord may demand and receive to extend a lease is limited only by negotiations and economic forces existing in the local rental market.
An exception to negotiations over the amount of rent to be charged exists in rent control communities, unless market rents have dropped below the maximum set by local ordinance. [See RPI Form 550 §1.3]
As an alternative, a proactive and forward-looking landlord openly negotiates and grants options to renew or extend when initially entering into a lease agreement. The right to extend the occupancy may be all that is needed to induce the tenant to remain a tenant on expiration of the lease. [See RPI Form 565]
01-2022 Revisions:
Beginning January 1, 2022, all residential landlords are to hand new tenants a copy of the educational booklet entitled Information on Dampness and Mold for Renters in California prior to execution of a rental or lease agreement.
§6.3 has been expanded to include the tenant’s acknowledgement of receipt of the booklet.
Two versions of the booklet have been published:
- one in English [See RPI Form 564-1]; and
- one in Spanish. [See RPI Form 564-2]
More information is available at New mold disclosures mandated for residential rentals.
06-2018 Revisions:
Added the following provision for a landlord to indicate whether they have knowledge a property is located in a special flood hazard area or an area of potential flooding
23.9 Notice: Landlord has actual knowledge the property is located in a special flood hazard area or an area of potential flooding. Tenant may obtain information about flood and other hazards at http://myhazards.caloes.ca.gov/. Landlord’s insurance does not cover Tenant’s possessions. Tenant may purchase renter’s insurance and flood insurance to insure their possessions from loss. Landlord is not required to provide additional information about flood hazards beyond this notice.
07-2015 Revisions:
[Red text indicates new or highly modified language.]The Lead-Based Paint Disclosure, firsttuesday Form 557, has been added to the attachments that can be incorporated into the lease agreement. [See RPI Form 550 §1.3]
A lead-based paint disclosure needs to be provided to prospective tenants of any residential property built before 1978, other than transient and elderly housing. [24 Code of Federal Regulations §35.82; 40 CFR §745.101]
////
§3.3 concerning a landlord’s acceptance of rent after a lease expires has been added, stating:
Landlord’s acceptance of rent after expiration of the lease term creates a month-to-month tenancy.
On expiration of a fixed-term lease, the landlord’s continued acceptance of rental payments does not renew the tenancy for another term equal to the term of the original lease. Rather, the tenancy is extended as a periodic tenancy for consecutive periods equal to the interval between rent payments — hence, one month if rent is paid monthly. [California Civil Code §1945]
////
§5.4 concerning who will reside in the property in addition to the named tenants has been added, stating:
Only the above-named Tenant(s) are to occupy the premises along with the following individuals: ____________________________________
This provides notice to the landlord of the identity of all individuals who will be occupying the property.
////
§5.7 has been modified to read:
Tenant agrees the premises, fixtures, appliances, furnishings and smoke and carbon monoxide detectors are in satisfactory and sanitary condition, except as noted in an addendum.
Further, 6.4 has been added to specify the tenant’s duties regarding smoke and carbon monoxide detectors, stating:
[Tenant Agrees]
To routinely check and properly maintain smoke and carbon monoxide detectors.
////
§6.14 concerning necessary fumigation and other repairs has been added, stating:
[Tenant Agrees]
To temporarily vacate the premises if required for necessary fumigation or other maintenance. Tenant is entitled to a per diem credit for each day the property is vacated due to maintenance.
////
§8 concerning the destruction of the premises has been added, stating:
8.1 If the premises are totally or partially destroyed and uninhabitable, either Landlord or Tenant may terminate the lease upon written notice.
a. If the lease is not terminated, Landlord will repair the premises and rent will be prorated based on a 30-day month for the period the premises was uninhabitable.
////////
05-2015 Revision:
§6.3 concerning the tenant’s responsibility to keep the premises clean has been modified, stating:
[Tenant Agrees]6.3 To keep the premises clean, well ventilated, free of mold contaminating moisture buildup and sanitary.
a. Tenant to promptly notify Landlord of unabated moisture buildup in the premises for prevention of mold contamination.
All shelter has mold spores. If moisture accumulates for a sufficient period of time, mold will propagate resulting in a mold contamination condition.
The changes to this form reference the need for tenant observance of moisture buildup and notice to the landlord before the landlord becomes obligated to respond and take steps to cure the problem, regardless of whether the tenant or the landlord is responsible for the presence of the moisture.
Form navigation page published 08-2015. Updated 03-2025.
Real Estate Property Management Chapter 50: Residential rental and lease agreements.
Real Estate Property Management Chapter 51: Foreign-language residential leases.
Real Estate Property Management Chapter 53: Permitting pets and waterbeds.
Real Estate Property Management Chapter 54: Civil rights and Fair Housing laws.
Real Estate Property Management Chapter 57: Residential rent control.
Real Estate Property Management Chapter 47: Lease renewal and extension options.
Real Estate Property Management Chapter 24: Forfeiture of the lease.
Article: Clearing up smoke alarm laws for residential properties








