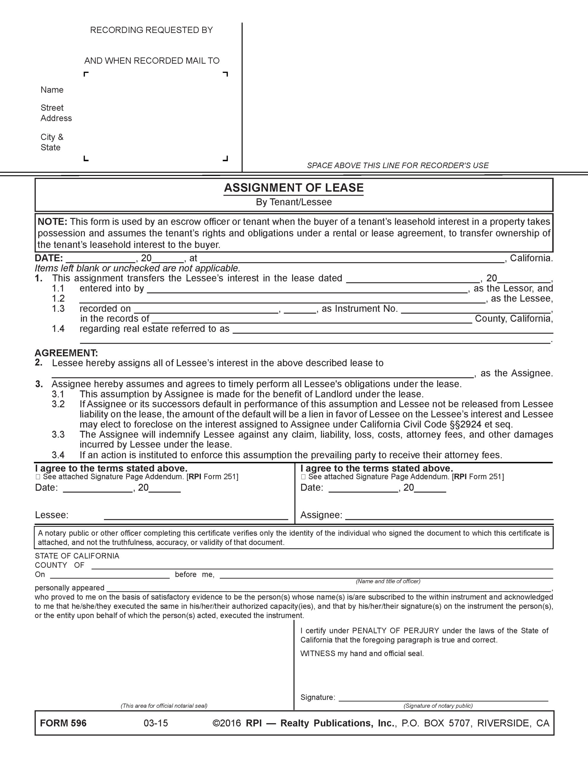
This form is used by an escrow officer or tenant when the buyer of a tenant’s leasehold interest in a property takes possession and assumes the tenant’s rights and obligations under a rental or lease agreement, to transfer ownership of the tenant’s leasehold interest to the buyer.
Transfer of any interest
A commercial lease agreement entered into by a tenant contains an assignment and subletting provision. This provision is also called a:
- restriction-on-transfer provision;
- restraint-on-alienation provision; and
- lease assumption.
This restriction-on-transfer provision either prohibits any transfer of the tenant’s interests in the leased property or requires the landlord’s consent prior to assigning, subletting or further encumbering the tenant’s leasehold interest. If the provision permits an assignment or subletting, it states the landlord’s consent requires modifications in the terms for rent or that the landlord’s consent will not be unreasonably withheld. [See RPI Form 552 §9 and 552-7]
An assignment of the leasehold held by the original tenant under a lease agreement transfers the tenant’s entire interest in the property to a successor tenant, leaving no interest held by the original tenant. However, on an assignment the original tenant named on the lease agreement remains liable for the successor tenant’s performance on the lease, whether or not the landlord consents to the assignment or that the successor tenant becomes primarily responsible for the lease obligations.
The successor tenant’s act of accepting responsibility on the prior tenant’s lease agreement is called an assumption. [See RPI Form 596]
For the original tenant to be released of their liability under the lease agreement on an assignment, a novation (also known as a substitution of liability) needs to be negotiated and entered into by the landlord and both the original and successor tenants. [Samuels v. Ottinger (1915) 169 C 209]
In contrast to an assignment, when entering into a sublease with a subtenant, the original tenant (who is now a master tenant) transfers to the subtenant less than all of the master tenant’s interest in the property. Also, possession reverts back to the master tenant on expiration of the sublease.
The master tenant granting the sublease remains obligated to perform under the terms of the master lease agreement. The subtenant does not assume liability of the master lease. However, the subtenant may not act in any way to breach the master lease agreement. The subtenant receives a copy of the master lease agreement as an attachment to the new lease agreement they enter into to create the sublease. [See RPI Form 552 §2.5]
The tenant’s assignment on their transfer of possession
Consider a tenant who sells or transfers the business they operate on the premises to a new business owner. Together with the sale of the business, the lease for the premises which the business occupies is also transferred to the new business owner.
The tenant inquires of the landlord to be released of any further obligations and liability arising from the lease agreement. With the consent of the landlord, the tenant and the new business owner execute an assignment of lease form transferring the original tenant’s leasehold interest in the property to the successor tenant. To be further released of any obligations and liability arising under the master lease, a novation is also negotiated and entered into by the landlord and the original and successor tenant. [See RPI Form 596]
The Assignment of Lease – By Tenant/Lessee form published by RPI (Realty Publications, Inc.) is used by a tenant when the buyer of a tenant’s leasehold interest in the property takes possession and assumes the tenant’s rights and obligations under a rental or lease agreement. Thus, it serves to transfer ownership of the tenant’s leasehold interest in the property to the buyer. [See RPI Form 596]
The Assignment of Lease – By Tenant/Lessee form references:
- the original lease and the premises subject to the assignment [See RPI Form 596 §1];
- the successor tenant to whom the lease is assigned [See RPI Form 596 §2]; and
- the agreement by the successor tenant to assume and timely perform all lessee obligations under the lease. [See RPI Form 596 §3]
The Assignment of Lease form is signed by both the tenant and the assignee in the presence of a notary when recording the assignment. The form is then recorded with the office of the county recorder in the county in which the premises is located.
The owner’s assignment on a sale of income property
Similarly and in juxtaposition, consider an owner of income property subject to a lease or rental agreement who intends to sell or transfer their fee ownership in the property to a new owner. Here, in addition to signing a grant deed to the property, the owner also enters an assignment of all the lease agreements entered into with the existing tenants.
An owner of income property assigns their interest in existing lease agreements as part of a transaction for a:
- concurrent sale of the fee ownership to the property;
- concurrent creation of a master lease as the landlord to a master tenant; or
- sale of an existing lease without the concurrent sale and transfer of the fee ownership in the property. [See RPI Form 595]
The Assignment of Lease – By Owner/Landlord published by RPI is used by a fee owner of income property, a broker or escrow when a buyer of the property assumes the owner’s rights and obligations under rental and lease agreements entered into with existing tenants, to transfer the owner’s interest in the lease agreements to the buyer. [See RPI Form 595]
The Assignment of Lease – By Owner/Landlord form references:
- the original lease and the premises subject to the assignment [See RPI Form 595 §1];
- the purpose of the transfer [See RPI Form 595 §2];
- the new owner to whom the lease is assigned [See RPI Form 595 §3]; and
- the agreement by the new owner to assume and timely perform all lessor obligations under the lease. [See RPI Form 595 §4]
As with the tenant’s Assignment of Lease form, when recording the owner’s Assignment of Lease form, it is signed in the presence of a notary by both:
- the owner of the property as the lessor under the lease agreement transferring their interest in the lease; and
- the successor owner acquiring the property subject to the lease.
The form is then recorded with the office of the county recorder in the county in which the premises is located.
Form navigation page published 02-2016. Updated 03-2026.
Form last revised 2015.








