This form is used by a property manager or landlord of a property subject to Just Cause eviction requirements when a tenant is in default, to notify the tenant of the amount of the delinquent rents payable within three days, excluding weekends and judicial holidays. [Calif. Civil Code §1946.2]
To serve a three-day notice to pay rent with rent-related fees, see RPI Form 575-2.
Default and notice
Consider a tenant who defaults on their rental or lease agreement by failing to:
- pay rent and any other amounts due as called for in the rental or lease agreement; or
- perform nonmonetary obligations called for in the rental or lease agreement.
On a tenant’s default, the landlord may make a demand on the tenant to cure the default and if not to vacate the premises as a forfeiture of possession.
However, only a material breach allows the landlord to forfeit the tenant’s right to possession. A minor breach consists of failure to pay junk fees not incurred due to occupancy.
Failure to pay rent or perform other occupancy related obligations called for in the rental or lease agreement is a material breach. Conversely, the tenant’s failure to pay late charges, interest penalties, bad check charges or security deposits are minor breaches, which alone do not justify a three-day notice to cure or quit. [Keating v. Preston (1940) 42 CA2d 110]
Some nonmonetary defaults by a tenant cannot be cured. These are known as incurable breaches. Incurable breaches include:
- waste to the premises;
- alienation of the leasehold; or
- significant criminal activity which has occurred on the property.
The landlord’s remedy for an incurable breach is to serve notice on the tenant to quit the premises within three days after service. The tenant has no alternative but to vacate. [See RPI Form 577]
Just cause evictions for entity owned residential rentals
For residential rental property owned by a non-exempt corporate type entity, a just cause needs to exist before the landlord may evict a tenant who has occupied the property for 12 months or more.
A corporate type entity as vested owner of residential rental property controlled by just cause eviction rules includes:
- a real estate investment trust (REIT);
- a corporation; or
- an LLC in which at least one member is a corporation.
Further, just cause entity landlords of a residential rental use two notices before an unlawful detainer (UD) can be established for eviction. The consolidated “pay or quit” notices are used in other default or breach situations.
The two separate just cause three-day notices used by just cause entity landlords and their property managers are:
- a three-day notice to perform, used to state what the tenant needs to do to cure a breach of their rental or lease agreement, be it the payment of money or other curative action the tenant is to take prior to expiration of the notice [Calif. Civil Code §1946.2; See RPI Form 576-1]; and
- a three-day notice to quit, used to prove the tenant’s unlawful detainer and eviction when a notice to perform expires and the breach has not been cured. [CC §1946.2(c); See RPI Form 577-1]
However, property conditions may exempt a multi-unit residential rental vested in a just cause-controlled entity ownership from using the two separate three-day notices — one to perform, the other to quit. The following property conditions exempt entities owning multi-unit residential rentals and allow use of the consolidated three-day notice to pay or quit:
- rentals issued a certificate of occupancy within the prior 15 years;
- a duplex when, at all times during a tenant’s occupancy, the other unit was the owner’s principal residence;
- units restricted to or subsidized for households of very low, low, or moderate income;
- dormitories built and operated by a California higher education institution;
- rent controlled units with annual rent increases set at a lesser amount than set by the TPA; and
- hotels and motels. [CC §1947.12(d), 1946.2(e); See RPI Form 575]
Also, conditions may exempt an SFR under a just cause-controlled entity ownership from using the two separate three-day notices and allow the use of the consolidated three-day notice to pay or quit. The exemptions for an SFR rental vested in corporate entity include:
- SFR accommodations in which the tenant shares kitchen or bathroom facilities with an SFR owner-occupant;
- SFR real estate which may be sold and conveyed separate from the title to any other dwelling unit, like in a SFR subdivision or condominium project, provided:
- the tenant has been given written notice stating the rental property owned by the just cause controlled entity is exempt from the rent increase caps as set by the state. [CC §§1947.12(d), 1946.2(e); See RPI Form 575]
Types of three-day notices for various breaches
The three-day notice served on a residential or commercial tenant needs to be the correct type before the tenant’s unlawful detainer (UD) of a premises can be established and the tenant evicted. Also, residential rentals owned by just cause-controlled entities use different notices from all other types of property and ownerships.
Depending on the nature and extent of the tenant’s breach, landlords other than just cause entities serve tenants with one of the following types of three-day notices:
- a three-day notice to pay rent or quit [See RPI Form 575 and 575-1];
- a three-day notice to perform or quit [See RPI Form 576]; or
- a three-day notice to quit. [See RPI Form 577]
When a tenant’s breach is the failure to pay rent or other money obligation past due, the tenant is served with a three-day notice to pay rent or quit. This type of breach is called a monetary breach. Thus, it is curable by paying money.
A three-day notice to pay or quit is not limited to the scheduled amount of periodic rent which is delinquent. While the notice to pay may not be served until rent is delinquent, the notice may include all sums of money which are properly due and unpaid under the rental or lease agreement at the time the notice is served, including the delinquent rent. [Canal-Randolph Anaheim, Inc. v. Wilkoski (1978) 78 CA3d 477]
Using the form variations
A landlord or property manager — other than a just cause entity — uses the Three-Day Notice to Pay Rent or Quit — With Rent-Related Fees published by RPI (Realty Publications, Inc.) to serve a tenant who fails to pay the amounts due under a rental or lease agreement. The tenant, within three (3) days after service of written notice of the breach, needs to either pay the amount due or vacate and deliver possession of the premises to the landlord. [Calif. Code of Civil Procedure §1161(2); See RPI Form 575]
Examples of amounts of money due periodically for occupancy under a rental or lease agreement, in addition to scheduled rent, include:
- common area maintenance charges (CAMs);
- homeowners’ association (HOA) charges;
- pro rata insurance premiums, property taxes and assessments;
- late payment and bad check charges;
- expenses incurred by the landlord to cure waste or failure to maintain the property; and
- other amounts of money properly due as compensation or reimbursement of expenses arising out of the occupancy.
A Three-Day Notice to Pay Rent or Quit — With Rent-Related Fees form provides for the itemization of rent plus any other amounts due which are unpaid and delinquent. [See RPI Form 575]
Alternatively, a residential landlord may choose, due to the discretion of local UD judges, to use a three-day notice to pay or quit form which does not include rent-related fees. [See RPI Form 575-1]
A landlord or property manager other than a just cause controlled entity uses the Three-Day Notice to Pay Rent or Quit — Without Rent-Related Fees published by RPI to serve a tenant who fails to pay the amounts due under a rental or lease agreement. However, the demand for payment is limited to actual delinquent rent only, which includes:
- rent and other amounts due and unpaid;
- CAM charges;
- HOA assessments; and
- property taxes. [See RPI Form 575-1]
For a just cause controlled landlord or their property manager, when a tenant is in default they use the Three-Day Notice to Pay Rent with Related Fees — For Properties Subject to Just Cause Eviction Requirements published by RPI. The form notifies the tenant of the amount of the delinquent rents and related fees payable within three days. [CC §1946.2; See RPI Form 575-2]
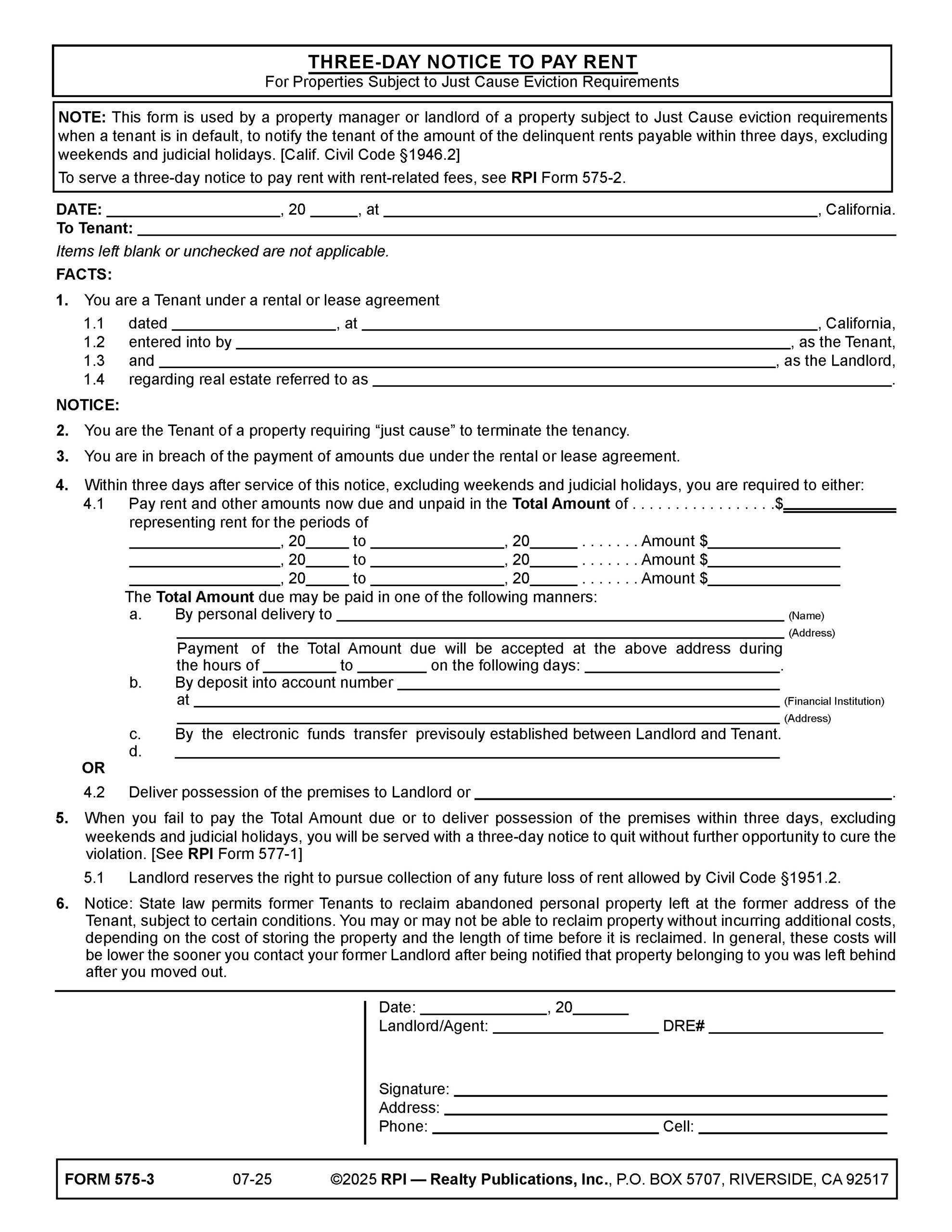
Alternatively, when a tenant is in default, a just cause landlord or their property manager uses the Three-Day Notice to Pay Rent — For Properties Subject to Just Cause Eviction Requirements published by RPI. The form notifies the tenant of the amount of the delinquent rent payable within three days. Provision for minor breaches are not included in this form. [CC §1946.2; See RPI Form 575-3]
Form navigation page published 02-2023. Updated 02-2026.
Form updated 2026.
Form-of-the-Week: Three-Day Notice to Pay Rent or Quit Variations — Forms 575, 575-1, 575-2 and 575-3
Article: 2020’s Tenant Protection Act Part I: Just cause eviction
Article: 2020’s Tenant Protection Act Part II: Rent caps
Article: Accept partial rent, retain a tenant
Blog: Self-help evictions: the new forbidden fruit for California landlords
Letter to the Editor: My tenant is late on rent. How many days need to pass before I can file an unlawful detainer action?









